|
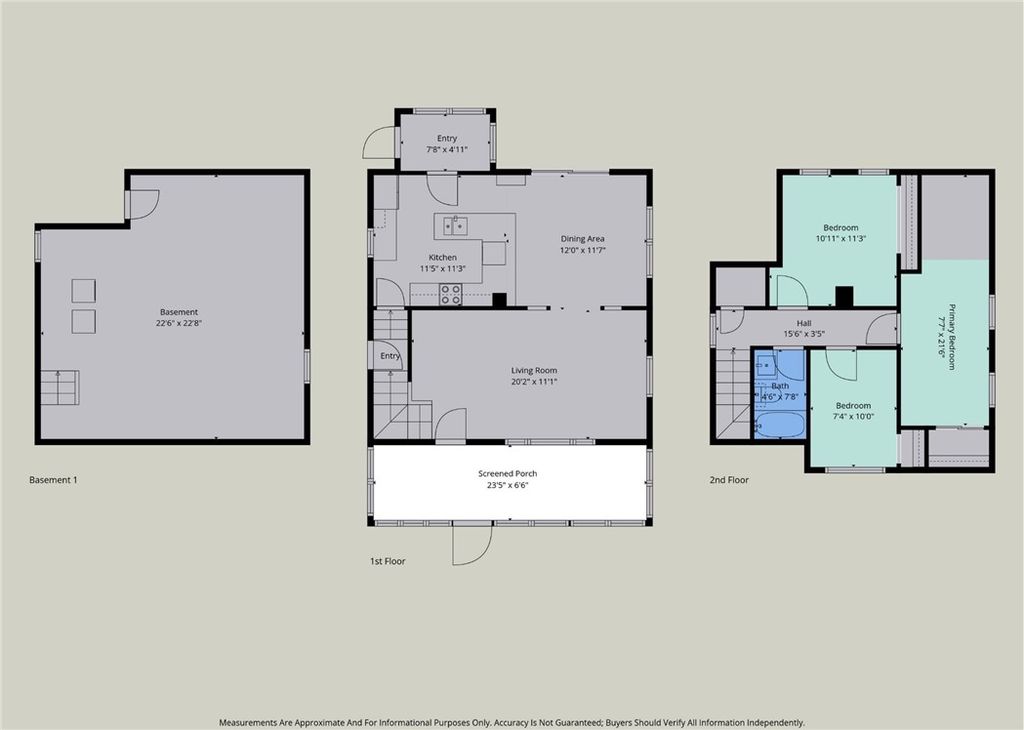
Charming 3-bedroom Cape Cod located in the Village of Webster, just minutes from Ridge Road and nearby shops, dining, and services. This home offers a comfortable layout with clear separation between living and sleeping areas and a welcoming feel throughout. The enclosed front porch and living room feature newly refinished hardwood floors, paired with original chestnut trim throughout the first floor, creating a warm and inviting main living space. A custom shiplap-style accent wall crafted from knotty pine adds visual interest and a cozy focal point. The eat-in country kitchen opens to everyday living space, while all three bedrooms are located on the second floor, including two bedrooms with new carpet. Hardwood flooring is present beneath the carpeting upstairs (condition unknown). Key mechanical updates include: Newer Gas furnace (2018) and Tankless water heater (2019) Additional features include a full basement, detached one-car garage, rear deck, and location within the Webster School District. Set on a 0.25-acre lot on a neighborhood street, this property offers a convenient village location with access to everyday amenities and major routes. A solid opportunity for an owner-occupant or investor. *****Ceiling Fan in Family Room has been replaced since photos were taken****** DELAYED NEGOTIATIONS TUESDAY FEBRUARY 10th AT 12PM
| DAYS ON MARKET | 1 | LAST UPDATED | 2/3/2026 |
|---|---|---|---|
| TRACT | Kirchers Park | YEAR BUILT | 1900 |
| COMMUNITY | Webster-Village-265401 | GARAGE SPACES | 1.0 |
| COUNTY | Monroe | STATUS | Active |
| PROPERTY TYPE(S) | Single Family |
| Elementary School | State Road Elementary |
|---|---|
| Jr. High School | Spry Middle |
| High School | Webster-Schroeder High |
| ADDITIONAL DETAILS | |
| AIR | Ceiling Fan(s), Central Air |
|---|---|
| AIR CONDITIONING | Yes |
| APPLIANCES | Dishwasher, Disposal, Dryer, Electric Oven, Electric Range, Microwave, Refrigerator, Tankless Water Heater, Washer, Water Heater |
| AREA | Webster-Village-265401 |
| BASEMENT | Full, Sump Pump, Yes |
| CONSTRUCTION | Vinyl Siding |
| GARAGE | Yes |
| HEAT | Natural Gas |
| HOA DUES | Single Family Residence |
| INTERIOR | Ceiling Fan(s), Eat-in Kitchen |
| LOT | 0.25 acre(s) |
| LOT DESCRIPTION | Rectangular Lot |
| LOT DIMENSIONS | 60X154 |
| PARKING | Detached, Garage, Garage Door Opener, Paved |
| STORIES | 1 |
| STYLE | Cape Cod, Two Story |
| SUBDIVISION | Kirchers Park |
| TAXES | 4624 |
| UTILITIES | Sewer Connected, Water Connected |
| WATER | Public |
MORTGAGE CALCULATOR
TOTAL MONTHLY PAYMENT
0
P
I
*Estimate only
| SATELLITE VIEW |
| / | |
We respect your online privacy and will never spam you. By submitting this form with your telephone number
you are consenting for Joanne
Smith to contact you even if your name is on a Federal or State
"Do not call List".
Listing provided by: Lalla Fitzpatrick, RE/MAX Plus, 585-455-2585
The data relating to real estate on this web site comes in part from the Internet Data Exchange (IDX) Program of the New York State Alliance, powered by New York State Alliance. Real estate listings held by firms other than the owner of this site, are marked with the IDX logo and detailed information about them includes the Listing Broker's Firm Name.
All information deemed reliable but not guaranteed and should be independently verified. All properties are subject to prior sale, change or withdrawal. Neither the listing broker(s) nor this site's owner shall be responsible for any typographical errors, misinformation, misprints, and shall be held totally harmless.
© 2026 New York State Alliance. All rights reserved
All information deemed reliable but not guaranteed and should be independently verified. All properties are subject to prior sale, change or withdrawal. Neither the listing broker(s) nor this site's owner shall be responsible for any typographical errors, misinformation, misprints, and shall be held totally harmless.
© 2026 New York State Alliance. All rights reserved
This IDX solution is (c) Diverse Solutions 2026.