|
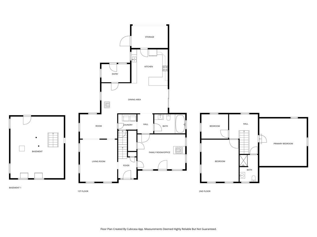
Charming Farmhouse Colonial with Modern Updates & Flexible Mixed-Use Space. This farmhouse colonial blends the warmth and character of yesteryear with thoughtful modern updates throughout. The spacious, updated kitchen features vaulted ceilings, granite countertops, a breakfast counter, exposed beam, and an inviting dining area, perfect for everyday living and entertaining. Just off the kitchen is a convenient woodshed, ideal for easy access during the colder months. A formal living room adds classic appeal, while the remodeled full bathroom offers a relaxing soaking tub. A separate laundry area and both interior and exterior access to the basement provide added convenience. The mixed-use portion of the property includes a studio with blown-in insulation, wood stove, and electric heat, along with a private entrance and dedicated parking. Previously used as a seamstress business, this versatile space can also serve as a first-floor bedroom, home office, or creative studio. Upstairs, you'll find three additional bedrooms and a second updated full bathroom. Wide plank floors and recessed lighting enhance the home's character, while major upgrades include 200-amp electric service, new PVC and PEX plumbing throughout, and R-20 insulation in the ceilings, offering comfort, efficiency, and peace of mind. Set on a spacious lot, the property also features a detached two car garage and plenty of room to enjoy outdoor living. Conveniently located less than a mile away from I88 for easy commute to Albany, Oneonta and Cooperstown areas, this home offers a rare combination of timeless charm, modern functionality, and flexible living or work-from-home potential.
| DAYS ON MARKET | 2 | LAST UPDATED | 2/2/2026 |
|---|---|---|---|
| YEAR BUILT | 1850 | COMMUNITY | Richmondville-Village-434001 |
| GARAGE SPACES | 2.0 | COUNTY | Schoharie |
| STATUS | Active | PROPERTY TYPE(S) | Single Family |
| ADDITIONAL DETAILS | |
| AIR | Ceiling Fan(s) |
|---|---|
| AIR CONDITIONING | Yes |
| APPLIANCES | Dishwasher, Disposal, Dryer, Electric Oven, Electric Range, Electric Water Heater, Refrigerator, Washer, Water Heater |
| AREA | Richmondville-Village-434001 |
| BASEMENT | Crawl Space, Exterior Entry, Partial, Walk-Up Access, Yes |
| CONSTRUCTION | Blown-In Insulation, Frame, Stone, Wood Siding |
| FIREPLACE | Yes |
| GARAGE | Yes |
| HEAT | Forced Air, Oil, Wood |
| HOA DUES | Single Family Residence |
| INTERIOR | Breakfast Bar, Cathedral Ceiling(s), Ceiling Fan(s), Eat-in Kitchen, Entrance Foyer, Granite Counters, Master Downstairs |
| LOT | 0.9 acre(s) |
| LOT DESCRIPTION | Irregular Lot |
| LOT DIMENSIONS | 85X325 |
| PARKING | Detached, Garage, Gravel |
| STORIES | 2 |
| STYLE | Colonial, Farmhouse |
| TAXES | 4231 |
| UTILITIES | Sewer Connected, Water Connected |
| WATER | Public |
MORTGAGE CALCULATOR
TOTAL MONTHLY PAYMENT
0
P
I
*Estimate only
| SATELLITE VIEW |
| / | |
We respect your online privacy and will never spam you. By submitting this form with your telephone number
you are consenting for Joanne
Smith to contact you even if your name is on a Federal or State
"Do not call List".
Listing provided by: Pearl Torres "Ruby", Keller Williams Realty Hudson Valley North
The data relating to real estate on this web site comes in part from the Internet Data Exchange (IDX) Program of the New York State Alliance, powered by New York State Alliance. Real estate listings held by firms other than the owner of this site, are marked with the IDX logo and detailed information about them includes the Listing Broker's Firm Name.
All information deemed reliable but not guaranteed and should be independently verified. All properties are subject to prior sale, change or withdrawal. Neither the listing broker(s) nor this site's owner shall be responsible for any typographical errors, misinformation, misprints, and shall be held totally harmless.
© 2026 New York State Alliance. All rights reserved
All information deemed reliable but not guaranteed and should be independently verified. All properties are subject to prior sale, change or withdrawal. Neither the listing broker(s) nor this site's owner shall be responsible for any typographical errors, misinformation, misprints, and shall be held totally harmless.
© 2026 New York State Alliance. All rights reserved
This IDX solution is (c) Diverse Solutions 2026.